Zeekant 104 D, Den Haag

€ 425.000 k.k.

  • Bij kantoor


    Omschrijving

    *** See English text below;

    Op een fantastische (rustige) plek gelegen, aan de boulevard, zee en Scheveningse kustlijn..... Lekker uitwaaien, chillen, relaxen en wandelen langs de vloedlijn? Nu kan het.

    In dit fraai en recent verduurzaamde gebouw treft u dit gemoderniseerde 2/3-kamerappartement aan, op de zesde woonlaag, waardoor weids uitzicht, hetgeen nooit verveeld met een hoop privacy. En een fijn balkon op het Westen, dus middag- en avondzon. Kijkend op de Pier.

    In de parkeergarage zijn er 2 separate parkeerplaatsen te koop, met een vraagprijs van € 40.000,- k.k. per stuk. Ook deze zijn gelegen op afgekochte erfpachtgrond. Via de Gevers Deynootweg met de auto de afgesloten entree bereikbaar en met afstandsbediening de deur te openen.

    Het gehele complex verkeerd in een goede staat van onderhoud en daar is de afgelopen jaren zeer hard aan gewerkt. Meer dan de helft van de appartementen zijn inmiddels gasloos en ook hierin kan goed worden geïnformeerd. Ook bij dit appartement kunt u redelijk eenvoudig van het gas af. De makelaar kan u er van alles over vertellen. Verder is de VvE zeer actief in verdere verduurzaming. Zo is het dak in 2025 vervangen met een verwachte levensduur van 100 jaar!

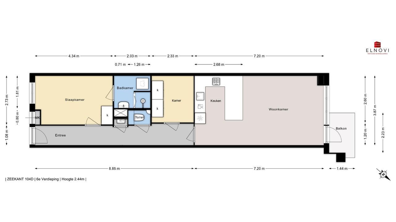
    Indeling; entree via zeezijde met bellentableau en camera. Trap, lift naar de zesde woonlaag. Galerij naar uw eigen entree en naastgelegen meterkast.

    Lange gang van ca. 9 meter lang, slaapkamer aan landzijde van 4.34 meter bij 2.73 met kastruimte. Doorloop naar de moderne badkamer met vaste wastafel, inloopdouche en plek voor de wasmachine. Apart toilet met fontein, via de gang bereikbaar.

    Aparte CV-kast met uw eigen CV-combiketel, dus geen blokverwarming. Dan aparte middenruimte alwaar werk- en/of bergkamer van 2.70 meter bij 2.33 meter. Voor vele doeleinde geschikt.

    Zalige woonkamer van 7.20 meter lang met recent vervangen moderne open woonkeuken, in C-vorm. Met goede inbouwapparatuur. Aan de voorzijde (zeezijde) doorgang naar balkon en doordat het een glazen balkonhek heeft, heeft u een echt ruim buitengevoel. Het balkon ligt op het Westen, waardoor middag- en avondzon. Fantastisch uitzicht naar zee, strand, Pier en Zwartepad.

    Wat u verder wilt weten;
    * woonoppervlakte 69,7m2 bruto en dat is 62m2 netto (volgens Femvisie, NEN2580)
    * afgekochte erfpacht van zowel appartement, berging als beide parkeerplaatsen
    * berging in onderbouw van 2.51 meter bij 2.07 meter (hoogte berging 2.10 meter)
    * zeer actieve en gezonde VvE
    * maandelijkse bijdrage VvE voor appartement en berging € 287,52
    * maandelijkse bijdrage VvE voor parkeerplaats (per stuk) € 25,53
    * rustig stuk van boulevard
    * nabij Openbaar Vervoer
    * nabij prettige winkels van het Belgisch Park
    * Palace Promenade & Kurhaus om de hoek
    * niet bewoond door eigenaar-clausule
    * eigen nutsvoorzieningen en geen blokverwarming
    * eenvoudig van het gas af te raken met lage investering
    * recent complex grondig verduurzaamd; voorbeeldfunctie voor velen!

    *************************************************************************************************

    Superbly located in a prime yet quiet setting along the boulevard, directly by the sea and the Scheveningen coastline.
    Enjoy fresh sea air, relaxation, and scenic walks along the shoreline — now within easy reach.

    This attractive and recently upgraded (energy-efficient) building offers a modernised 2/3-room apartment, situated on the sixth floor. Thanks to its elevated position, the property benefits from panoramic, unobstructed views that never cease to impress, combined with a high level of privacy. The apartment also features a west-facing balcony, ideal for enjoying the afternoon and evening sun, overlooking the iconic Pier.

    Within the secured underground parking garage, two separate parking spaces are available for purchase at an asking price of €40,000 (costs for buyer) per space. These are also located on prepaid leasehold land. The garage is easily accessible via the Gevers Deynootweg, with a remote-controlled entrance.

    The entire complex is in excellent condition, with substantial investments made in recent years. More than half of the apartments have already been converted to gas-free living, and this apartment can also be transitioned relatively easily. The agent will be happy to provide further details. The Owners’ Association (VvE) is highly proactive in sustainability initiatives; for example, the roof was fully renewed in 2025 with an expected lifespan of 100 years.

    Layout;

    Entrance via the seaside with intercom system and camera security. Staircase and lift provide access to the sixth floor. Gallery leading to the private entrance and adjacent utility meter cupboard.

    A spacious hallway of approximately 9 metres leads to the various rooms. The bedroom, located on the land side, measures approximately 4.34 x 2.73 metres and includes built-in storage. This connects to the modern bathroom, equipped with a washbasin, walk-in shower, and space for a washing machine.

    A separate toilet with washbasin is accessible from the hallway.

    There is also a dedicated central heating cupboard with an individual combi boiler (no district heating). Additionally, a versatile intermediate room (approx. 2.70 x 2.33 metres) can be used as a home office, storage space, or guest room.

    The bright and spacious living room (approx. 7.20 metres in length) features a recently renewed modern open-plan kitchen in a C-shaped layout, fully equipped with built-in appliances. At the front (sea-facing side), sliding doors provide access to the balcony. The glass balustrade enhances the sense of space and openness outdoors.

    The west-facing balcony offers spectacular views of the sea, beach, the Pier, and the Zwartepad, while benefiting from afternoon and evening sun.

    Key Features;
    * living area: approx. 69.7 m² gross / 62 m² net (NEN2580 measured)
    * prepaid leasehold applicable to the apartment, storage unit, and both parking spaces
    * private storage in the basement: approx. 2.51 x 2.07 m (height 2.10 m)
    * active and financially sound Owners’ Association (VvE)
    * monthly service charges:
    * apartment + storage: €287.52
    * parking space (per unit): €25.53
    * quiet section of the boulevard
    * excellent public transport connections nearby
    * close to shops in the charming Belgisch Park area
    * within walking distance of Palace Promenade and Kurhaus
    * non-owner occupied clause applicable
    * individually metered utilities (no block heating)
    * easy and cost-efficient transition to gas-free living
    * recently extensively upgraded and energy-efficient complex — a benchmark for sustainable living

  • Locatie

    [ { "address": "Zeekant 104", "zipCode": "2586 JJ", "city": "Den Haag", "lat": 52.1163996, "lng": 4.28645, "heading": 0, "pitch": 0 } ]
  • Kenmerken

    Prijs
    € 425.000 k.k.
    Status
    Beschikbaar
    Oplevering
    In overleg

    Bouw

    Soort appartement
    Galerijflat, Appartement
    Woonlaag
    6
    Soort bouw
    Bestaande bouw
    Bouwjaar
    1985
    Onderhoud binnen
    Uitstekend
    Onderhoud buiten
    Goed

    Oppervlakten en inhoud

    Woonoppervlakte
    62m²
    Inhoud
    191m³

    Indeling

    Aantal kamers
    2
    Aantal slaapkamers
    1
    Verdiepingen
    1
    Voorzieningen
    Lift

    Energie

    Energielabel
    B
    Warm water
    C.V.-ketel
    Verwarming
    C.V.-ketel
    Ketel
    (Combi-ketel, Eigendom)

    Buitenruimte

    Ligging
    Vrij uitzicht, Zeezicht

    Garage

    Soort garage
    Parkeerkelder, Parkeerplaats
  • Reageer

    Uw bericht is naar ons verzonden. Wij nemen zo snel mogelijk contact met u op.

    Sorry, we kunnen helaas niet met zekerheid vaststellen of je een mens of een geautomatiseerde bot/spammer bent. Hierdoor kunnen we het formulier dat je hebt ingevuld niet verzenden. Probeer het opnieuw of neem direct contact op met de makelaar via e-mail.

    Er is iets mis gegaan met het versturen van het formulier.
    Controleer of u alle velden (goed) heeft ingevoerd en probeer het nog een keer.

    recaptcha
    reCAPTCHA
    PrivacyTerms

Vergelijkbare woningen

Verkocht
Molenstraat 34
2513 BL Den Haag
€ 495.000 k.k.
122m² 529m³ 5 kamers
Verkocht
Zeekant 98 F
2586 JE Den Haag
€ 469.000 k.k.
73m² 248m³ 3 kamers
Verkocht
Mijdrechtstraat 9
2515 SK Den Haag
€ 349.000 k.k.
79m² 261m³ 4 kamers
Verkocht
Goudenregenstraat 51
2565 EN Den Haag
€ 395.000 k.k.
96m² 324m³ 5 kamers