Laakkade 198, Den Haag

€ 250.000 k.k.

  • Bij kantoor


    Omschrijving

    ** See English text below;

    Nabij het Haagse Centrum en oude Centrum van Rijswijk gelegen, zeer verzorgde eerste etage, hetgeen van alle gemakken voorzien. Goed onderhouden en instapklaar.

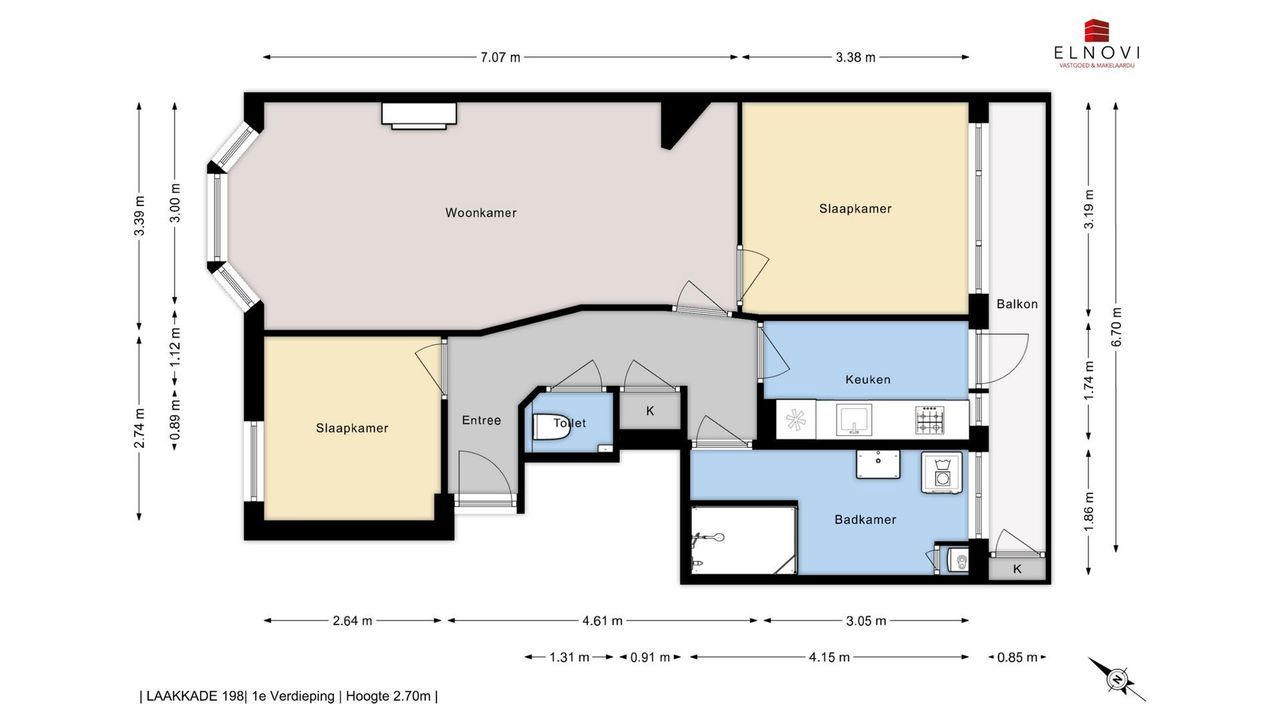
    Deze eerste etage is een aantal jaar geleden gerenoveerd, waarbij de originele indeling is aangepast. Entree op de eerste etage, hal, meterkast. De kamer-en-suite is gehalveerd, waardoor je een ruime woonkamer van ruim 7 meter lang en 3.39 meter breed overhoudt. Van het gedeelte van de eetkamer is de ruime achterslaapkamer gemaakt van 3,38 meter bij 3,19 meter.

    De voorzijkamer is de tweede slaapkamer en meet 2,74 meter bij 2,64 meter.

    Van de achterzijkamer is een fatsoenlijke badkamer gemaakt van 4,15 meter bij 1,86 meter, met inloopdouche, vaste wastafel, opstelling voor de wasmachine/droger en plek voor de CVC-combiketel.

    Apart modern toilet met fontein.

    Aan de mid-achterzijde ligt de dichte keuken, rechte opstelling en met deur naar het brede achtergelegen balkon van bijna 7 meter bij 0,85 meter.

    Kortom, fijn appartement en zo te betrekken. Met of zonder de inrichting. Deze kan namelijk achterblijven in overleg.

    Wat u verder wil weten;
    * woonoppervlakte bruto 75,1m2 en dat is netto 66,5m2 volgens NEN2580
    * eigen grond
    * kleine actieve VvE met 3 leden (half portiek)
    * VvE beheerder is Totaal VvE beheer
    * maandelijkse VvE bijdrage van € 100,-
    * energielabel D
    * eigen CV-combiketel
    * de gebruikelijke ouderdomsclausules gelet op bouwjaar (1930)
    * goede ligging nabij uitvalswegen

    *************************************************************************************************

    Strategically located in close proximity to The Hague city centre and the historic centre of Rijswijk, this well-maintained first-floor apartment offers a turnkey living solution with all modern comforts.

    The property has been comprehensively renovated in recent years, during which the original layout was thoughtfully reconfigured to optimise functionality and living space.

    Access is provided via a private entrance on the first floor, leading into the hallway with meter cupboard. The former en-suite layout has been modified, resulting in a spacious living room measuring over 7 metres in length and 3.39 metres in width. The original dining area has been converted into a generous rear bedroom of approximately 3.38 x 3.19 metres.

    The front-side room serves as a second bedroom and measures approximately 2.74 x 2.64 metres.

    The former rear-side room has been transformed into a well-proportioned bathroom (approx. 4.15 x 1.86 metres), fitted with a walk-in shower, fixed washbasin, designated space for a washer and dryer, and the installation of a central heating combi-boiler.

    A separate, modern toilet with hand basin is provided.

    The enclosed kitchen is situated at the mid-rear of the property, featuring a straight-line configuration and direct access to the generously sized rear balcony of nearly 7 metres in length and 0.85 metres in width.

    In summary, this is a highly attractive and move-in ready apartment. The property may be delivered furnished or unfurnished, subject to agreement.

    Additional information:
    * gross floor area: 75.1 sq.m.; net usable living area: 66.5 sq.m. (measured in accordance with NEN2580)
    * freehold property (no ground lease)
    * small, active Owners’ Association (VvE) comprising 3 members (shared entrance with upper/lower unit)
    * professionally managed by Totaal VvE Beheer
    * monthly VvE contribution: €100
    * energy label: D
    * individually owned central heating combi-boiler
    * standard age clause applicable (year of construction: 1930)
    * conveniently located near major arterial roads and transport links

    Should you require further information or wish to arrange a viewing, we would be pleased to assist.

  • Locatie

    [ { "address": "Laakkade 198", "zipCode": "2521 XL", "city": "Den Haag", "lat": 52.0639876, "lng": 4.3254374, "heading": 0, "pitch": 0 } ]
  • Kenmerken

    Prijs
    € 250.000 k.k.
    Status
    Beschikbaar
    Oplevering
    In overleg

    Bouw

    Soort appartement
    Portiekflat, Appartement
    Woonlaag
    1
    Soort bouw
    Bestaande bouw
    Bouwjaar
    1930
    Onderhoud binnen
    Goed
    Onderhoud buiten
    Goed

    Oppervlakten en inhoud

    Woonoppervlakte
    67m²
    Inhoud
    225m³

    Indeling

    Aantal kamers
    3
    Aantal slaapkamers
    2
    Verdiepingen
    1

    Energie

    Energielabel
    D
    Warm water
    C.V.-ketel
    Verwarming
    C.V.-ketel
    Ketel
    (Combi-ketel, Eigendom)
  • Reageer

    Uw bericht is naar ons verzonden. Wij nemen zo snel mogelijk contact met u op.

    Sorry, we kunnen helaas niet met zekerheid vaststellen of je een mens of een geautomatiseerde bot/spammer bent. Hierdoor kunnen we het formulier dat je hebt ingevuld niet verzenden. Probeer het opnieuw of neem direct contact op met de makelaar via e-mail.

    Er is iets mis gegaan met het versturen van het formulier.
    Controleer of u alle velden (goed) heeft ingevoerd en probeer het nog een keer.

    recaptcha
    reCAPTCHA
    PrivacyTerms

Vergelijkbare woningen

Verkocht
Reinkenstraat 69 C
2517 CR Den Haag
€ 275.000 k.k.
60m² 212m³ 3 kamers
Verkocht
Okkernootstraat 88
2555 ZJ Den Haag
€ 250.000 k.k.
82m² 277m³ 3 kamers
Verkocht
Gevers Deynootweg 1264 D
2586 HN Den Haag
€ 269.000 k.k.
57m² 171m³ 2 kamers
Verkocht
David Blesstraat 104
2526 BL Den Haag
€ 225.000 k.k.
65m² 256m³ 3 kamers