Hofzichtlaan 160, Den Haag

€ 225.000 k.k.

  • Bij kantoor


    Omschrijving

    ** See English text below;

    ** OPEN HUIS op;
    * woensdag 11 februari tussen 16:00 en 17:30 uur
    * donderdag 12 februari tussen 16:00 en 17:30 uur

    Heerlijk licht en ruim 2-kamer appartement, op de 5e verdieping. Recent nagelopen, waardoor het nagenoeg instapklaar is. Het is een aantal jaar geleden grondig gerenoveerd. Fraai uitzicht richting de skyline van Den Haag, mede door de grote ramen.
    Net om de hoek van Station Mariahoeve, dus zeer nabij openbaar vervoer.

    Entree op begane grond via eigen terrein, waarbij de auto ook achter een slagboom (op eigen terrein) kan worden geparkeerd. Eigen berging in de onderbouw. Gesloten entree met bellentableau, trap of lift naar de zesde woonlaag.

    Overloop na lift en trap. Aangekomen bij uw voordeur, eigen entree, lange gang, garderobe.
    Aparte moderne badkamer met douche en vaste wastafel. Separaat toilet en naastgelegen ruimte met plek voor je wasmachine.

    De wand tussen de overloop en woonkamer is lekker breed, waardoor fijne brede doorloop.

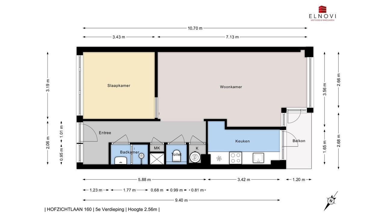
    Aan de straatzijde bevindt zich de lichte en prettige woonkamer van 7,13 meter lang en 3,56 meter breed, met groot raam met weids uitzicht. Via de gang doorgang naar de strak opzette keuken. Niet nieuw, maar redelijk goed onderhouden. Deur naar balkon.

    Aan de achterzijde de goed van formaat zijnde slaapkamer van 3,43 meter lang en 3,19 meter breed. Via schuifdeur via woonkamer te bereiken.

    Balkon van 2.68 bij 1.20 aan de voorzijde bij middagzon.

    Wat u verder wilt weten;
    * woonoppervlakte bruto 61,2m2, dat is netto 53,8m2 (volgens NEN2580)
    * parkeren op eigen afgesloten terrein, achter slagboom (en gratis parkeren)
    * nabij winkels zoals Winkelcentrum Mariahoeve, Bezuidenhout en The Mall of the Netherlands (Leidschenhage)
    * letterlijk om de hoek van divers Openbaar Vervoer, zoals NS-station Mariahoeve met bus, trein en tram
    * erfpacht t/m 31 december 2035 voor € 61,- canon per jaar
    * balkon
    * eigen kelderberging
    * actieve VvE met maandelijkse bijdrage van € 219,- (Vervane beheer)
    * maandelijks voorschot blokverwarming van € 85,-
    * niet bewoond door eigenaar-clausule
    * as-is, where-is
    * gelet op bouwjaar de gebruikelijke ouderdomsclausule

    *************************************************************************************************

    ** OPEN HOUSE on;
    * wednesday 11 February between 16:00 - 17:30
    * thursday 12 february between 16:00 - 17:30

    Bright and spacious one-bedroom apartment, located on the 5th floor. The apartment has recently been inspected and is virtually move-in ready. It underwent a thorough renovation several years ago. Thanks to the large windows, the property enjoys a pleasant open view towards the skyline of The Hague.

    Situated just around the corner from Mariahoeve railway station, offering excellent access to public transport.

    Ground floor entrance via private grounds, with parking available on the premises behind a secured barrier. A private storage unit is located in the basement. Secured main entrance with doorbell panel; access to the residential floors by staircase or elevator.

    Landing upon exiting the lift or staircase. Private front door leading into a long hallway with wardrobe space.
    Separate modern bathroom with shower and fixed washbasin. Separate toilet, with an adjacent space for a washing machine.

    The wall between the hallway and living room is generously wide, creating a pleasant and open transition.

    At the front side of the apartment is the bright and comfortable living room, measuring approx. 7.13 x 3.56 metres, featuring a large window and wide, unobstructed views. From the hallway, access to the neatly designed kitchen; not new, but well maintained. Door to the balcony.

    At the rear is the well-proportioned bedroom, measuring approx. 3.43 x 3.19 metres, accessible via a sliding door from the living room.

    The balcony, approx. 2.68 x 1.20 metres, is located at the front of the apartment and enjoys afternoon sun.

    Additional information:
    * gross living area: 61.2 m², net living area: 53.8 m² (measured in accordance with NEN2580)
    * parking on private, secured grounds behind a barrier (free of charge)
    * close to shopping facilities such as Mariahoeve Shopping Centre, Bezuidenhout, and The Mall of the Netherlands (Leidschenhage)
    * literally around the corner from various public transport options, including Mariahoeve railway station with bus, train, and tram connections
    * leasehold until 31 December 2035, annual ground rent: €61
    * balcony
    * private basement storage unit
    * active Owners’ Association (VvE) with a monthly contribution of €219 (managed by Vervane)
    * monthly advance payment for block heating: €85
    * non-owner-occupied clause applicable
    * sale on an “as-is, where-is” basis
    * standard age-related clause applicable given the year of construction

  • Locatie

    [ { "address": "Hofzichtlaan 160", "zipCode": "2594 CG", "city": "Den Haag", "lat": 52.091791, "lng": 4.366181, "heading": 0, "pitch": 0 } ]
  • Kenmerken

    Prijs
    € 225.000 k.k.
    Servicekosten
    € 85
    Status
    Beschikbaar
    Oplevering
    In overleg

    Bouw

    Soort appartement
    Bovenwoning, Appartement
    Woonlaag
    6
    Soort bouw
    Bestaande bouw
    Bouwjaar
    1963
    Onderhoud binnen
    Goed
    Onderhoud buiten
    Goed

    Oppervlakten en inhoud

    Woonoppervlakte
    54m²
    Inhoud
    175m³

    Indeling

    Aantal kamers
    2
    Aantal slaapkamers
    1
    Verdiepingen
    1

    Energie

    Energielabel
    E
    Warm water
    Elektrische boiler eigendom
    Verwarming
    Blokverwarming

    Garage

  • Reageer

    Uw bericht is naar ons verzonden. Wij nemen zo snel mogelijk contact met u op.

    Sorry, we kunnen helaas niet met zekerheid vaststellen of je een mens of een geautomatiseerde bot/spammer bent. Hierdoor kunnen we het formulier dat je hebt ingevuld niet verzenden. Probeer het opnieuw of neem direct contact op met de makelaar via e-mail.

    Er is iets mis gegaan met het versturen van het formulier.
    Controleer of u alle velden (goed) heeft ingevoerd en probeer het nog een keer.

    recaptcha
    reCAPTCHA
    PrivacyTerms

Vergelijkbare woningen

Verkocht
Okkernootstraat 88
2555 ZJ Den Haag
€ 250.000 k.k.
82m² 277m³ 3 kamers
Verkocht
Gevers Deynootweg 1264 D
2586 HN Den Haag
€ 269.000 k.k.
57m² 171m³ 2 kamers
Verkocht
David Blesstraat 104
2526 BL Den Haag
€ 225.000 k.k.
65m² 256m³ 3 kamers
Verkocht
Van Brederodestraat 1 B
2581 TB Den Haag
€ 249.000 k.k.
51m² 198m³ 2 kamers