Snoeksloot 52, Zoetermeer

€ 400.000 k.k.

  • Bij kantoor


    Omschrijving

    ** See English text below;

    *** OPEN HUIS: 2 dagen;

    1. Dinsdag 20 januari van 16:00 tot 17:30 uur
    2. Woensdag 21 januari van 16:00 tot 17:30 uur

    Middenin de gezellige woonwijk Seghwaert, ligt deze eengezinswoning van bruto ca. 135m2 met 4 slaapkamers, carport (eigen parkeerplek voor je auto) en ruime achtertuin van 11,5 meter diep aan watertje. Leuk!

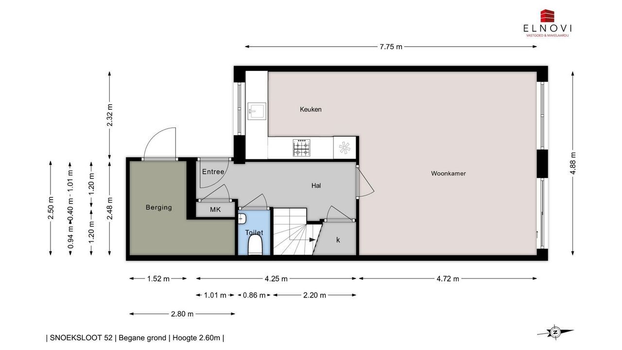
    Indeling; voortuin van ca. 7 meter diep en carport voor je auto van 5 meter diep. Aparte berging voor fietsen etc.
    Voordeur, lange hal van 4,25 meter lang. Meterkast. Apart toilet met fontein. Grote gangkast.

    Entree woonkamer van totaal 7,75 meter lang en op breedst 4,88 meter. Open keuken aan de voorzijde en de keuken zelf is L-vormig met enige apparatuur. Schuifpui naar de achtergelegen tuin van ruim 11,5 meter diep en 5,10 meter breed, direct grenzend aan watertje.

    Trappenhuis naar de 1e etage; L-vormige overloop en een drietal slaapkamers van resp. (voorzijde) 3,50 x 2,84, (achterzijde) 4,19 x 2,84 en (achterzijde) 3,19 x 1,97. Aparte badkamer aan de voorzijde met inloopdouche, tweede toilet en vaste wastafel.

    Trappenhuis naar de bovenste etage; ruime zolder/slaapkamer met schuine wanden en opstelplaats van de CV-ketel en wasmachine. Deze kan je eenvoudig wegwerken op een overloop en met wat creativiteit maak je er ook een slaapkamer van. Totale oppervlakte inclusief schuine wanden is 8 meter lang en 4,88 meter breed.

    Kortom, leuk huis op een goeie & vriendelijke locatie.

    Wat u verder wilt weten;
    * woonoppervlakte bruto ruim 135,5m2 en dat is netto 101,3m2 (volgens NEN2580)
    * perceeloppervlakte 138m2
    * eigen grond
    * voortuin, carport, berging, 4 slaapkamers, achtertuin
    * energielabel C
    * niet bewoond door eigenaarclausule
    * gelet op bouwjaar de gebruikelijke ouderdoms- en materialenclausules

    *************************************************************************************************

    ** OPEN HOUSE; 2 days;

    1. Tuesday January 20th between 16:00 and 17:30
    2. Wednesday January 21st between 16:00 and 17:30

    Right in the heart of the wonderfully cosy residential neighbourhood of Seghwaert, you’ll find this charming family home offering a gross floor area of approx. 135 m², featuring 4 bedrooms, a carport (aka your very own VIP parking spot) and a generously sized back garden of no less than 11.5 metres deep, beautifully located alongside a little stretch of water. Yes please!

    Layout;
    At the front you’ll find a front garden of approx. 7 metres deep, plus a 5-metre-deep carport for your car. There’s also a separate storage unit for bikes, tools and other essential life accessories.

    Step inside through the front door into a long hallway (approx. 4.25 metres) with: the meter cupboard, a separate toilet with small sink, a large storage closet.

    The living room is a generous 7.75 metres long and up to 4.88 metres wide at its broadest point — plenty of room for lounging, hosting, and dramatically sipping coffee while staring into the distance.

    At the front of the home you’ll find the open kitchen, set up in an L-shape, equipped with various built-in appliances (so you can cook like a TV chef — or at least look like one).

    At the back, a sliding door opens to the spacious rear garden:
    approx. 11.5 metres deep and 5.10 metres wide, directly bordering the water — perfect for sunbathing, BBQ-ing, and pretending you’re living in a holiday brochure.

    First floor

    The staircase leads to the first floor with an L-shaped landing and three bedrooms:

    Front bedroom: 3.50 x 2.84 m

    Rear bedroom: 4.19 x 2.84 m

    Rear bedroom: 3.19 x 1.97 m

    At the front is the bathroom, featuring:

    a walk-in shower

    a second toilet

    fixed washbasin

    Top floor

    Up to the top floor: a spacious attic / bedroom with sloped ceilings and space for:

    the central heating boiler

    washing machine setup

    With a little creativity (and a bit of “HGTV energy”), you can neatly hide this away on the landing — and voilà, you’ve created an extra bedroom or a dreamy hobby room.

    Total size including sloped areas: approx. 8 metres long and 4.88 metres wide.

    In short

    A lovely home in a friendly, well-located neighbourhood — in other words: a property that deserves to be seen (preferably with an enthusiastic agent waving their arms around).

    What else you’ll want to know
    * gross living area: approx. 135.5 m²
    * net living area: 101.3 m² (NEN2580 measurement standard)
    * plot size: 138 m²
    * freehold land (yes, you own the ground too!)
    * front garden, carport, storage unit, 4 bedrooms, backyard
    * energy label: C
    * “not occupied by owner” clause applies
    * due to the construction year, the usual age and material clauses apply

  • Locatie

    [ { "address": "Snoeksloot 52", "zipCode": "2724 CV", "city": "Zoetermeer", "lat": 52.0629082, "lng": 4.5088637, "heading": 0, "pitch": 0 } ]
  • Kenmerken

    Prijs
    € 400.000 k.k.
    Status
    Beschikbaar
    Oplevering
    In overleg

    Bouw

    Soort woonhuis
    Eengezinswoning, Tussenwoning
    Soort bouw
    Bestaande bouw
    Bouwjaar
    1983
    Onderhoud binnen
    Goed
    Onderhoud buiten
    Goed

    Oppervlakten en inhoud

    Woonoppervlakte
    101m²
    Perceeloppervlakte
    138m²
    Overig oppervlakte
    5m²
    Inhoud
    376m³

    Indeling

    Aantal kamers
    5
    Aantal slaapkamers
    4
    Verdiepingen
    1

    Energie

    Energielabel
    C
    Warm water
    C.V.-ketel
    Verwarming
    C.V.-ketel
    Ketel
    (Combi-ketel, Eigendom)

    Buitenruimte

    Tuin
    Achtertuin, Voortuin
    Achtertuin
    Noord, 57m², 510×1125cm
    Schuur
    Aangebouwd steen
    Faciliteiten schuur
    Voorzien van elektra

    Garage

    Soort garage
    Carport, Parkeerplaats
  • Reageer

    Uw bericht is naar ons verzonden. Wij nemen zo snel mogelijk contact met u op.

    Sorry, we kunnen helaas niet met zekerheid vaststellen of je een mens of een geautomatiseerde bot/spammer bent. Hierdoor kunnen we het formulier dat je hebt ingevuld niet verzenden. Probeer het opnieuw of neem direct contact op met de makelaar via e-mail.

    Er is iets mis gegaan met het versturen van het formulier.
    Controleer of u alle velden (goed) heeft ingevoerd en probeer het nog een keer.

    recaptcha
    reCAPTCHA
    PrivacyTerms